SECooler Logo

Manufacturer of Premium walk-in coolers, freezers and cold storage doors

  • Home
  • Sales Literature(pdf)
  • Products
  • Surface Material Options
  • Door Options(pdf)
  • Contact

Combination Cooler

(right click here and choose (save target as) to save pdf file)

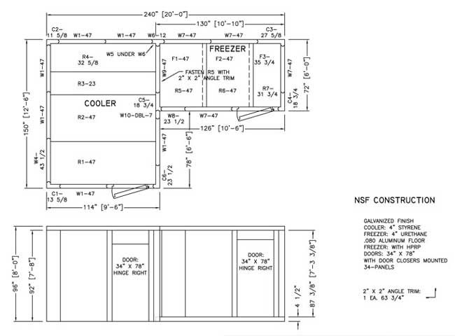
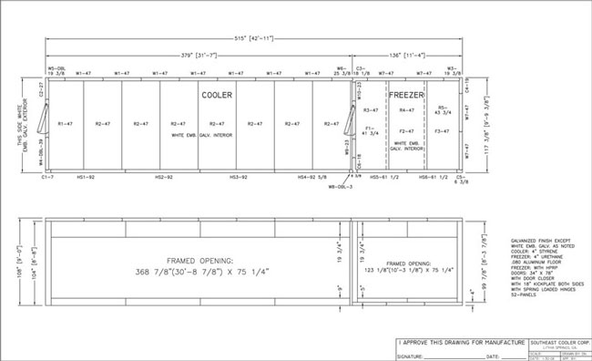
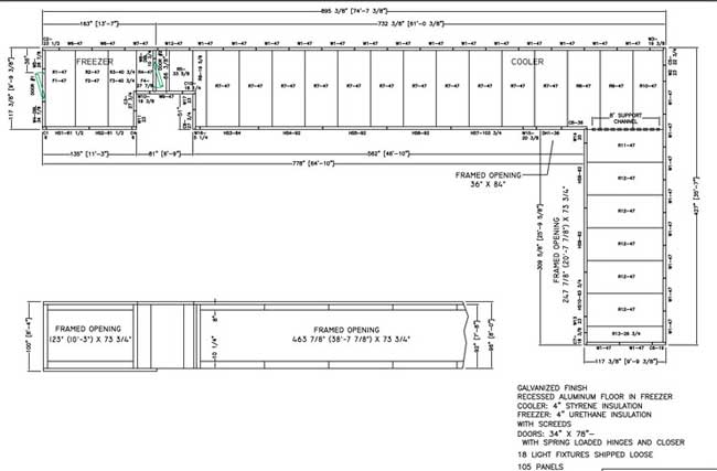
Combination Coolers & Freezers

Cooler Drawings

(right click here and choose (save target as) to save pdf file)

Cooler Drawings

 

(right click here and choose (save target as) to save pdf file)

Combo with Glass

Restaurant Combo

 

 


  • Southeast Cooler Companies

    • Polar Temp
      Ice Merchandisers - Ice Point of Sale
      Indoor & Outdoor Models-Delivery Transports-Refrigerated Trailers
      Polar Temp website
    • Ice-Max
      Industrial Ice Processing and Handling Equipment-Ice Storage Bins-Bagging Machines-Ice Conveyors
      Ice Max website
    • American Ice Equipment Exchange website
      Used Ice Equipment Selections on a National Level.
  • Sales Literature/Information - .pdf

    • Sales Literature (Printable)
    • 2009 Walk-In Standards
    • Foam-In-Place Panel Systems
    • Walk-in Cooler, Freezer, Combinantion Cooler
    • C-Store Presentation
    • Restaurant Presentation
    • Step-in Cooler Presentation
    • Beer Cooler Presentation
    • Game Cooler Presentation
    • Replacement Door Presentation
    • Panel Specification-R-Factors
    • Product Approvals Document
    • Flame and Smoke Ratings
    • Refrigeration Systems
    • Hardware
    • Diamond Plate Panel Protection Pkg
    • Exterior Roofing Membrane
    • Cooler Floors and Ramps
    • Freezer Floors
    • Ceiling "T" Hangers
    • Quotation Worksheet
    • Door Sizing Guide
    • Warranty Program
  • Useful Links

    • IPIA - International Packaged Ice Association

© SE Cooler All Rights Reserved.  •  Design by WebCitz.